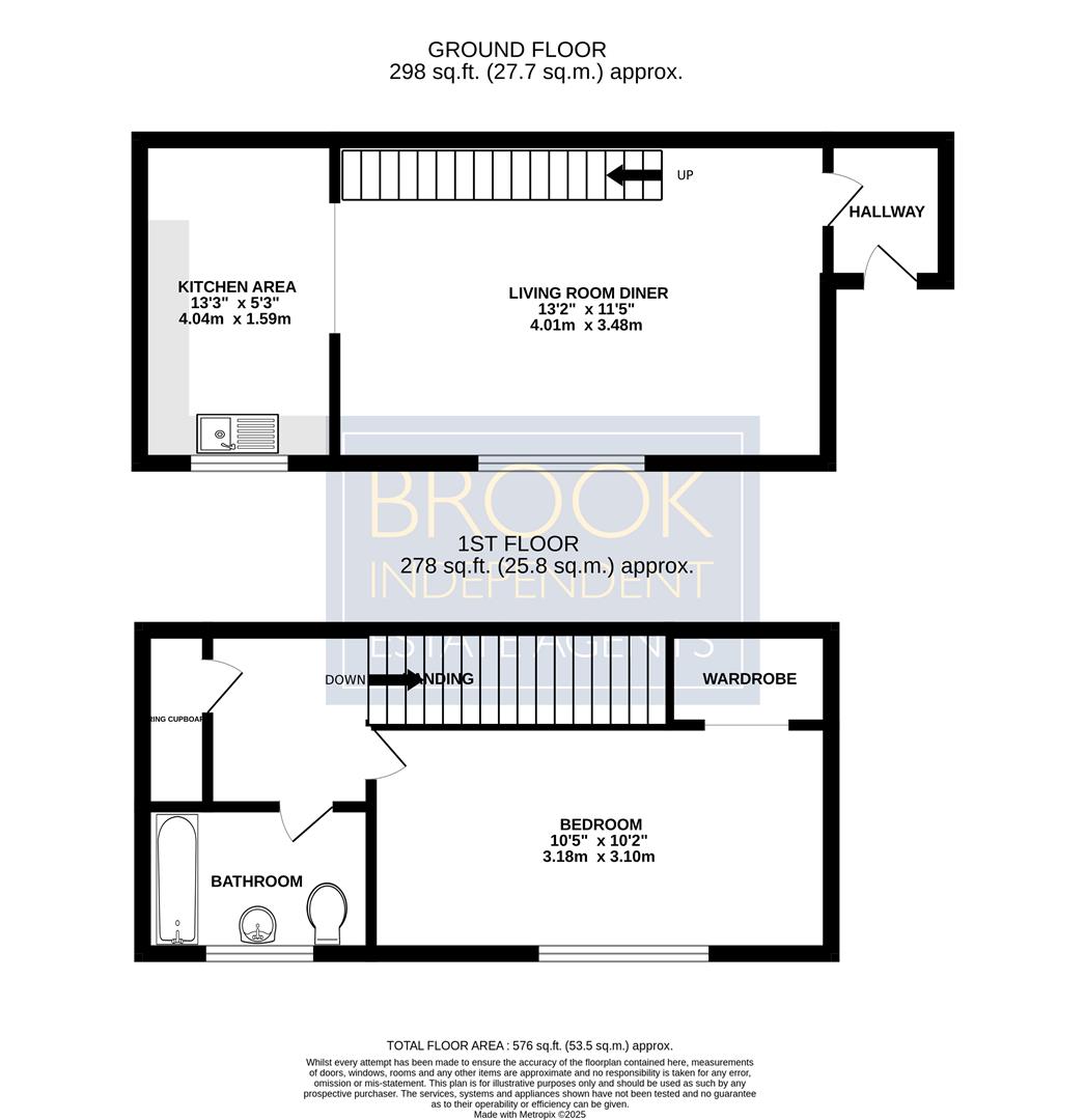
Lancaster Close, Bursledon | Brook Independent Estate Agents