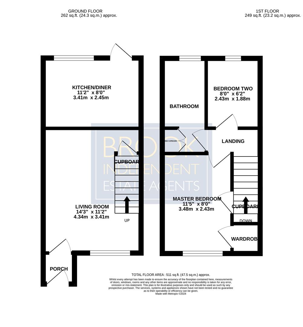
Hertsfield, Fareham | Brook Independent Estate Agents